← Terug naar aanbod overzicht
Beschrijving
Schutteheide 1 36, HEEL
SNEEK PREVIEW!!
Welkom op Resort Boschmolenplas, waar dit tussengelegen 6-persoons vakantiehuis aan het water voor de allermooiste vakanties in eigen land zorgt. Het levendige uitzicht aan de achterzijde, naar de jachthaven, is van ongekende schoonheid en aan de voorzijde is parkeergelegenheid op eigen terrein.
Dit vakantiehuis, gesitueerd op EIGEN GROND (152m2), heeft een lichte woon-/eetkamer, een halfopen keuken met inbouwapparatuur, drie slaapkamers en twee badkamers.
Dit is de perfecte indeling voor een onbezorgde vakantie, als gezin en met vrienden of familie!
Voor watersporters, duikliefhebbers, wandelaars, fietsers en de liefhebbers van het Bourgondische leven is Resort Boschmolenplas een fantastische plek voor een vakantie in eigen land. Op het resort zijn vele voorzieningen zoals een privéstrand aan de recreatieplas waar je ook kunt surfen, suppen, roeien, kanoën, zeilen, zwemmen en zelfs duiken, een jachthaven met sloepenverhuur, tennisbanen, sportveld, outdoor fitness toestellen, een duikschool en in directe nabijheid (toegankelijk via het park) een restaurant met groot terras. Ook kun je op het resort een fiets huren, want de omgeving kent vele prachtige fietsroutes. De jachthaven staat in open vaarverbinding met de Maasplassen. Het Bourgondische Limburg met steden als Roermond, Sittard, Maastricht en Weert en vele dorpjes is de perfecte plek voor een vakantie in eigen land. Eindhoven is ongeveer een half uur rijden en Utrecht is iets meer dan 130 kilometer rijden vanaf Resort Boschmolenplas.
Indeling:
Begane grond:
Aan de voorzijde zie je drie deuren, waarbij de middelste deur toegang geeft tot de hal. De deur aan de linkerzijde is van de meterkast, en de deur aan de rechterzijde van de inpandige berging/bijkeuken. In de hal, aan de rechterzijde, zijn de toiletruimte met fonteintje en de trap naar de eerste verdieping.
Met een maximale breedte van 7.30 meter heeft dit vakantiehuis een verrassend ruime en lichte woonkamer, met openslaande deuren naar het deels overdekte terras/tuin met een groot elektrisch bedienbaar zonnescherm. Het uitzicht naar de haven is fantastisch!
In de keuken staat een hoekopstelling met inbouwapparatuur, en de naastgelegen berging is een prima plek voor de wasmachine, fietsen en andere vakantiespullen.
Eerste verdieping:
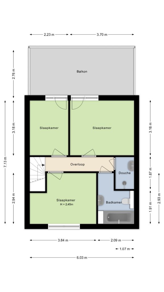
Aan de achterzijde zijn twee slaapkamers, waaronder de master bedroom met airco. Beide kamers hebben een directe toegang tot het zeer ruime dakterras met elektrisch zonnescherm over de volledige breedte.
Aan de voorzijde is de derde slaapkamer die, net als de master bedroom, groot genoeg is voor een tweepersoonsbed.
Er zijn twee badkamers, wat dit vakantiehuis heel geschikt maakt voor een vakantie met vrienden en familie. De grote badkamer is ingedeeld met een ligbad, wastafel en een toilet. In de tweede badkamer zijn een douche en een wastafel, uitgevoerd in lichte kleuren.
Dakterras en tuin:
Het dakterras is, net als de achtertuin, gesitueerd op het westen. Het grote terras is de perfecte plek om van de zon te genieten, tot in de late avonduren. Er hangt een breed, elektrisch bedienbaar zonnescherm en het omliggende groen maakt de tuin tot een gezellige buitenruimte. Ook aan de linkerzijde en voorzijde van het vakantiehuis is veel groen, en er is parkeergelegenheid op eigen terrein.
- De verkoopprijs is inclusief alle aanwezige stoffering, meubilering en verdere inventaris
- Prima verhuurmogelijkheden via de eigen verhuurorganisatie
- Geen verhuurverplichting
** Onbeperkt Eigen Gebruik Mogelijk!!
Bijzonderheden:
- Perceel van 152 m2 eigen grond
- 6-persoons vakantiehuis met prachtig uitzicht
- Toplocatie aan het water, met uitzicht naar de jachthaven
- 3 slaapkamers en 2 badkamers
- Riant dakterras en een tuin/terras, beiden op het zonnige westen
- Parkeergelegenheid op eigen terrein
- Uitstekende plek voor natuur- en waterliefhebbers
- C.V-ketel uit 2016
- 2x elektrisch zonnescherm
- Airco op de hoofdslaapkamer (behoeft enig onderhoud)
Welkom op Resort Boschmolenplas, waar dit tussengelegen 6-persoons vakantiehuis aan het water voor de allermooiste vakanties in eigen land zorgt. Het levendige uitzicht aan de achterzijde, naar de jachthaven, is van ongekende schoonheid en aan de voorzijde is parkeergelegenheid op eigen terrein.
Dit vakantiehuis, gesitueerd op EIGEN GROND (152m2), heeft een lichte woon-/eetkamer, een halfopen keuken met inbouwapparatuur, drie slaapkamers en twee badkamers.
Dit is de perfecte indeling voor een onbezorgde vakantie, als gezin en met vrienden of familie!
Voor watersporters, duikliefhebbers, wandelaars, fietsers en de liefhebbers van het Bourgondische leven is Resort Boschmolenplas een fantastische plek voor een vakantie in eigen land. Op het resort zijn vele voorzieningen zoals een privéstrand aan de recreatieplas waar je ook kunt surfen, suppen, roeien, kanoën, zeilen, zwemmen en zelfs duiken, een jachthaven met sloepenverhuur, tennisbanen, sportveld, outdoor fitness toestellen, een duikschool en in directe nabijheid (toegankelijk via het park) een restaurant met groot terras. Ook kun je op het resort een fiets huren, want de omgeving kent vele prachtige fietsroutes. De jachthaven staat in open vaarverbinding met de Maasplassen. Het Bourgondische Limburg met steden als Roermond, Sittard, Maastricht en Weert en vele dorpjes is de perfecte plek voor een vakantie in eigen land. Eindhoven is ongeveer een half uur rijden en Utrecht is iets meer dan 130 kilometer rijden vanaf Resort Boschmolenplas.
Indeling:
Begane grond:
Aan de voorzijde zie je drie deuren, waarbij de middelste deur toegang geeft tot de hal. De deur aan de linkerzijde is van de meterkast, en de deur aan de rechterzijde van de inpandige berging/bijkeuken. In de hal, aan de rechterzijde, zijn de toiletruimte met fonteintje en de trap naar de eerste verdieping.
Met een maximale breedte van 7.30 meter heeft dit vakantiehuis een verrassend ruime en lichte woonkamer, met openslaande deuren naar het deels overdekte terras/tuin met een groot elektrisch bedienbaar zonnescherm. Het uitzicht naar de haven is fantastisch!
In de keuken staat een hoekopstelling met inbouwapparatuur, en de naastgelegen berging is een prima plek voor de wasmachine, fietsen en andere vakantiespullen.
Eerste verdieping:
Aan de achterzijde zijn twee slaapkamers, waaronder de master bedroom met airco. Beide kamers hebben een directe toegang tot het zeer ruime dakterras met elektrisch zonnescherm over de volledige breedte.
Aan de voorzijde is de derde slaapkamer die, net als de master bedroom, groot genoeg is voor een tweepersoonsbed.
Er zijn twee badkamers, wat dit vakantiehuis heel geschikt maakt voor een vakantie met vrienden en familie. De grote badkamer is ingedeeld met een ligbad, wastafel en een toilet. In de tweede badkamer zijn een douche en een wastafel, uitgevoerd in lichte kleuren.
Dakterras en tuin:
Het dakterras is, net als de achtertuin, gesitueerd op het westen. Het grote terras is de perfecte plek om van de zon te genieten, tot in de late avonduren. Er hangt een breed, elektrisch bedienbaar zonnescherm en het omliggende groen maakt de tuin tot een gezellige buitenruimte. Ook aan de linkerzijde en voorzijde van het vakantiehuis is veel groen, en er is parkeergelegenheid op eigen terrein.
- De verkoopprijs is inclusief alle aanwezige stoffering, meubilering en verdere inventaris
- Prima verhuurmogelijkheden via de eigen verhuurorganisatie
- Geen verhuurverplichting
** Onbeperkt Eigen Gebruik Mogelijk!!
Bijzonderheden:
- Perceel van 152 m2 eigen grond
- 6-persoons vakantiehuis met prachtig uitzicht
- Toplocatie aan het water, met uitzicht naar de jachthaven
- 3 slaapkamers en 2 badkamers
- Riant dakterras en een tuin/terras, beiden op het zonnige westen
- Parkeergelegenheid op eigen terrein
- Uitstekende plek voor natuur- en waterliefhebbers
- C.V-ketel uit 2016
- 2x elektrisch zonnescherm
- Airco op de hoofdslaapkamer (behoeft enig onderhoud)
Specificaties
4
3
100m2
152m2
300m3
Recreatief gebruik
Recreatief gebruik
Duurzaam
- dakisolatie
- muurisolatie
- vloerisolatie
- dubbel glas
Specificaties
4
3
100m2
152m2
300m3
Recreatief gebruik
Recreatief gebruik
Duurzaam
- dakisolatie
- muurisolatie
- vloerisolatie
- dubbel glas
Verwarming
- CV ketel
Voorzieningen
- TV kabel
- buitenzonwering
Locatie
Geïnteresseerd?
Ontdek de mogelijkheden, vraag een brochure aan
of maak een vrijblijvende afspraak.
CONTACT
© 2026 Leisure For Life | Disclaimer | Privacyverklaring | Website: Have a Byte!





















